Top Floor Apartment, Nueva Andalucía

Málaga, Costa del Sol, Nueva Andalucía
CDS 4892932
440.000 €
  • bed

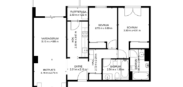
    2 slaapkamers

  • bath

    2 badkamers

  • area

    85m2

Dit prachtig gerenoveerde penthouse appartement met 2 slaapkamers en 2 badkamers ligt in een zeer gewilde gemeenschap. Met zijn zuidwestelijke oriëntatie biedt de woning een lichte en luchtige sfeer, waardoor je de hele dag van de zon kunt genieten vanaf het uitgestrekte onoverdekte terras, perfect om te ontspannen en buiten te eten.

Het appartement is onlangs gemoderniseerd en biedt een strakke en eigentijdse leefruimte. De gemeenschap biedt uitstekende voorzieningen, waaronder een groot zwembad, padelbanen en een restaurant op het terrein, waardoor comfort en gemak verzekerd zijn. Bovendien is de locatie onovertroffen, met slechts een korte wandeling naar het strand, winkels en lokale attracties. Dit penthouse is ideaal voor wie op zoek is naar een stijlvol, zonovergoten toevluchtsoord in een levendige en goed onderhouden buurt.

Interesse in deze woning?

Vragen