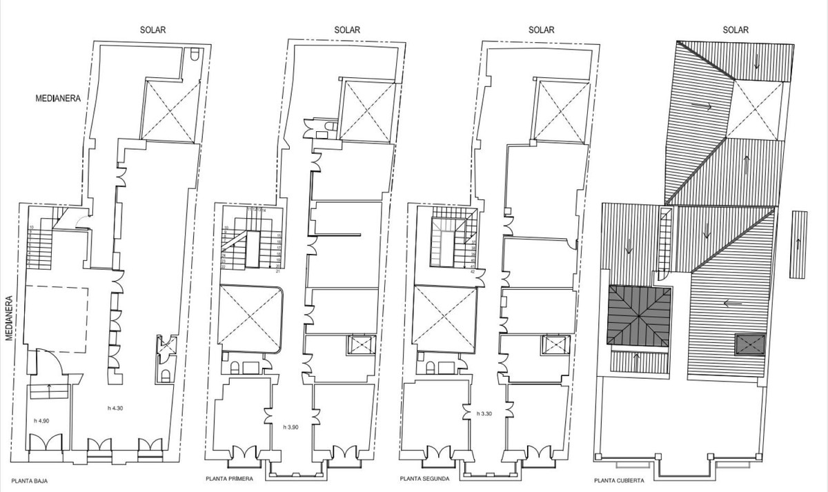
Gebouw in het Malaga Centro Historico met verborgen charme en schoonheid! Gebouwd in de traditionele regionale bouwstijl en gedocumenteerd in het architectuurboek van Malaga.
Verdeeld over 3 verdiepingen plus een dakterras met uitzonderlijk panoramisch uitzicht over de stad, waaronder de iconische kathedraal van Malaga en de bergen.
Deze woning heeft een groot potentieel om te worden gerenoveerd tot een zeer hoge standaard met extreem hoge plafonds en veel binnenruimte.