Residential Plot, Coín

Málaga, Costa del Sol, Coín
CDS 4273663
5.050.000 €
  • area

    25250m2

Uitstekende investeringsmogelijkheid – Bouwgrond in Coín, Málaga

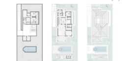
Een uitzonderlijke kans voor investeerders en ontwikkelaars! Dit uitgestrekte woonperceel van 107.274 m² ligt in een van de snelst ontwikkelende gebieden van Coín en biedt uitstekende verbindingen met belangrijke wegen en openbare infrastructuur.

Geclassificeerd als georganiseerde stedelijke grond, is het perceel volledig voorbereid voor de bouw van 67 individuele villa’s, met perceelgroottes variërend van 720 tot 950 m². Bovendien omvat het project aangewezen groene ruimten en gemeentelijke voorzieningen, waardoor een goed geplande en duurzame woongemeenschap wordt gegarandeerd.

Met zijn strategische ligging en grote vraag naar kwaliteitswoningen in de omgeving, biedt deze ontwikkeling een lucratieve kans voor investeerders die op zoek zijn naar een sterk rendement.

Mis het niet – neem vandaag nog contact met ons op voor meer informatie!

Interesse in deze woning?

Vragen